Helvécián eladó tégla építésű családiház projekt.

Helvécia
Székely
Szobák száma
4
Alapterület
90 m²
Telekterület
400 m²

eladó
családi ház

Tetőtér
nem beépíthető
Mikor költözhető
Fürdő és WC
külön és egyben is
Szintek száma
Földszintes
Komfort
összkomfortos
Ingatlan állapota
befejezetlen
Villany
van
Emelet
földszint
Bútorozott
nem
Építés éve
Belmagasság
3m-nél alacsonyabb
Beépíthetőség
40
Víz
van
Parkolóhely típusa
udvari beálló
Parkolóhely használatának feltétele
benne van az árban
Akadálymentesített
nem
Dohányzás
nincs megadva
Gépesített
nincs megadva
Kertkapcsolatos
igen
Kisállat hozható
nincs megadva
Lift
nincs megadva
Légkondicionáló
van
Nincs gáz bekötve az ingatlanba
nincs megadva
Pince
nincs

Fenntarthatóság

Fűtés
gázkazán
Energetikai tanúsítvány
A
Szigetelés vastagság (cm)
15cm
Gáz
van
Napelem
nem
Zöld otthon
nincs megadva
Panelprogramban részt vett
nincs megadva
Szigetelés
igen
Leírás

Helvécián eladó tégla építésű családiház projekt.

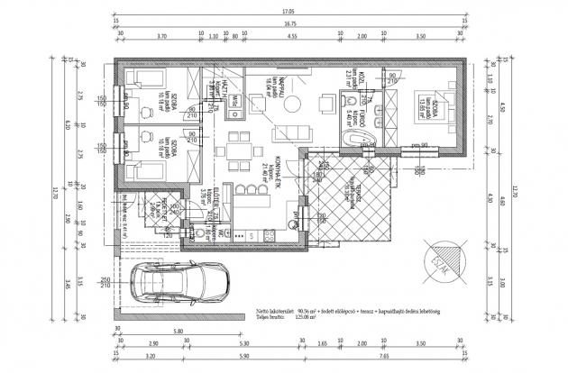
  Helvécián eladó 400 nm-es telken egy nettó 90,5 nm-es tégla építésű családiház projekt. Zártsorú, 40 %-os beépíthetőséggel. Kocsibeálló opcionálisan fedhető.
Klimatizált, A+ energetikával.
Egyeztessen időpontot most, hogy le ne maradjon róla!
A teljes folyamatot végigkísérjük az első beszélgetéstől a kulcsátadásig.
  Ez egy projekt hirdetés valós, aktuális költségvetés és korábbi megépült és/vagy megtervezett házaink alapján. A kivitelezésnek szerződéses megrendelés esetén fogunk hozzá. A kivitelezési idő egy év, E-napló megnyitása utáni első “kapavágástól”.
Keressen bizalommal!
(belső azonosító: 0199VLV – ez a projekt együttműködésben készül)

Könnyűszerkezetes ár
72 000 000 Ft
Tégla ár
72 000 000 Ft
Kép
Vizeli László
Kérdése van? Hívjon!

Vizeli László

Vagy kérjen visszahívást!
Mi érdekli leginkább?
Kulcsszavak
családiház
tégla
újépítés
Helvécia